La pianta della casa così come prevista da un geometra. Soluzione che non è condivisibile né per disposizione degli spazi né perché prevede una ristrutturazione completa.

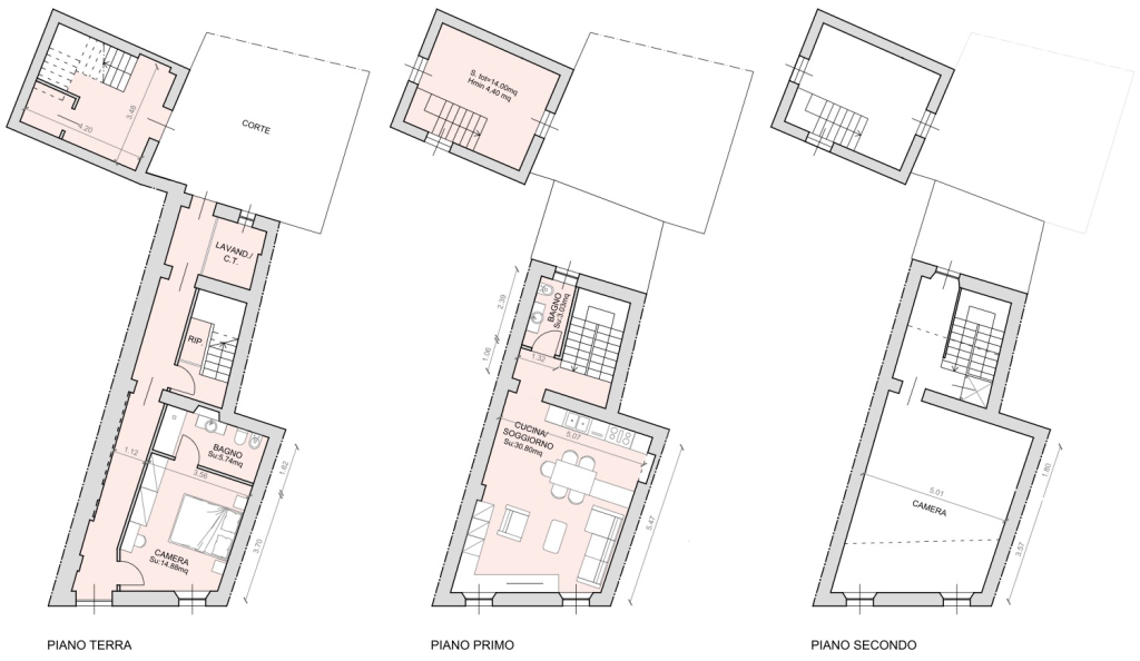
Idee Piano Terra
L’obiettivo vorrebbe essere spostare la residenza. Le possibilità sono due. La sistemazione del piano terra, con due soluzioni, oppure la sistemazione della torretta esterna e lasciare in seguito la sistemazione della parte principale.
Easy

Top

Idee Torre
La sistemazione della torre prevede varie fasi.
- requisiti minimi richiesti dalla normativa italiana per essere considerato “spazio abitabile”
- requisiti igienico-sanitari fondamentali
- valutare stabilità strutturale
- capire se è conforme per futuri sviluppi
- preventivare impianti
- piano lavoro: impianto elettrico base, bagno con doccia e caldaia a gas o elettrico; rivestimenti e isolamento, climatizzatore per caldo/freddo; allaccio alle utenze



Considerazioni torretta
Dal momento che l’unico modo per accedere alla torretta è attraverso il corridoio della casa principale, se si intervenisse prima sulla casa principale, poi sarebbe difficile effettuare la manutenzione della torretta.
Cambio di destinazione d’uso: meglio farlo ad inizio lavori o alla fine? Va da se che le rilevazioni di un ingegnere devono essere eseguite preventivamente. Il cambio destinazione d’uso ad inizio lavori permette di accedere al bonus ristrutturazione 50%, installare impianti a norma fin da subito e aumentare il valore dell’immobile.
La torretta è stata parzialemente manutenuta nel passato con lavori artigianali non comunicati al comune. I lavori hanno riguardato la sistemazione esterna, l’applicazione di una “fascia di consolidamento” poco sotto il tetto.

RECUPERO e INTERVENTI EQUIPARATI
https://www.regione.fvg.it/rafvg/cms/RAFVG/famiglia-casa/casa/FOGLIA8/#id3
Non sono compresi gli interventi di manutenzione ordinaria. Il richiedente è tenuto ad informarsi presso un tecnico abilitato (architetto, ingegnere, geometra ecc.) se i lavori che intende effettuare sull’abitazione sono classificabili tra gli interventi sopra elencati secondo quanto previsto dalla legge regionale 19/2009.
Agevolazioni regionali
È possibile richiedere il bando del 2025 per i lavori di ristrutturazione, presentando la domanda adesso tramite IOL, dopo l’avvio lavori, e coprendo almeno il 50 % oppure fino a €60.000 (Tipo I) o €20.000 (Tipo II)?
